3519 Front Road East Hawkesbury, Ontario K6A 2R2
$1,650,000
A ONCE IN A LIFETIME OPPORTUNITY TO OWN A WATERFRONT PROPERTY LIKE THIS IN THE AREA!I Introducing a truly rare and prestigious waterfront estate, set on a breathtaking 1.93-acre private peninsula with over 360 feet of pristine shoreline. Perfectly positioned to capture uninterrupted panoramic views of the Ottawa River, this property offers an exclusive lifestyle of serenity, sophistication, and natural grandeur. Every element of this residence has been designed to inspire, with elegant architectural details, 9-foot ceilings throughout, and a show-stopping 19-foot cathedral ceiling in the grand family room. Floor-to-ceiling windows frame the water like fine art. while a double-sided fireplace adds warmth and refinement to the space. The heart of the home is a stunning open-concept kitchen featuring an oversized island and top-of-the-line appliances, perfectly suited for everyday living. Enjoy two spacious living rooms, ideal for both formal entertaining and relaxed family gatherings, as well as a dedicated home office featuring breathtaking views of the river. The ultimate work-from-home sanctuary. The main floor also includes a 2-piece powder room, a separate laundry room, and direct access to a triple car garage, with a private entry to the fully finished basement. Upstairs, the luxurious master bedroom offers a spa-inspired ensuite with radiant flooring, a fireplace and an expansive walk-in closet that will exceed expectations. Two additional well-appointed bedrooms and a stylish bathroom complete the upper level. Outside, the property is a private oasis, with professionally landscaped grounds and a full sprinkler system to keep the lush surroundings pristine with ease. For boating enthusiasts, a secluded private bay offers protected docking and effortless access to the water a rare and coveted feature on this stretch of the river. This is more than a home; it's a legacy property, a private sanctuary, and a showcase of refined riverside living. (id:43934)
Open House
This property has open houses!
1:00 pm
Ends at:3:00 pm
Property Details
| MLS® Number | X12550738 |
| Property Type | Single Family |
| Community Name | 615 - East Hawkesbury Twp |
| Easement | Easement |
| Parking Space Total | 8 |
| View Type | Direct Water View |
| Water Front Type | Waterfront |
Building
| Bathroom Total | 3 |
| Bedrooms Above Ground | 4 |
| Bedrooms Total | 4 |
| Age | 16 To 30 Years |
| Amenities | Fireplace(s) |
| Appliances | Water Heater, Central Vacuum, Garage Door Opener Remote(s), Blinds, Dishwasher, Dryer, Stove, Washer, Refrigerator |
| Basement Development | Finished |
| Basement Type | N/a (finished) |
| Construction Style Attachment | Detached |
| Cooling Type | Central Air Conditioning, Air Exchanger |
| Exterior Finish | Vinyl Siding, Wood |
| Fireplace Present | Yes |
| Fireplace Total | 2 |
| Foundation Type | Concrete |
| Half Bath Total | 1 |
| Heating Fuel | Propane |
| Heating Type | Forced Air |
| Stories Total | 2 |
| Size Interior | 3,500 - 5,000 Ft2 |
| Type | House |
Parking
| Detached Garage | |
| Garage |
Land
| Access Type | Public Road, Private Docking |
| Acreage | No |
| Sewer | Septic System |
| Size Depth | 98 Ft ,8 In |
| Size Frontage | 360 Ft ,8 In |
| Size Irregular | 360.7 X 98.7 Ft |
| Size Total Text | 360.7 X 98.7 Ft |
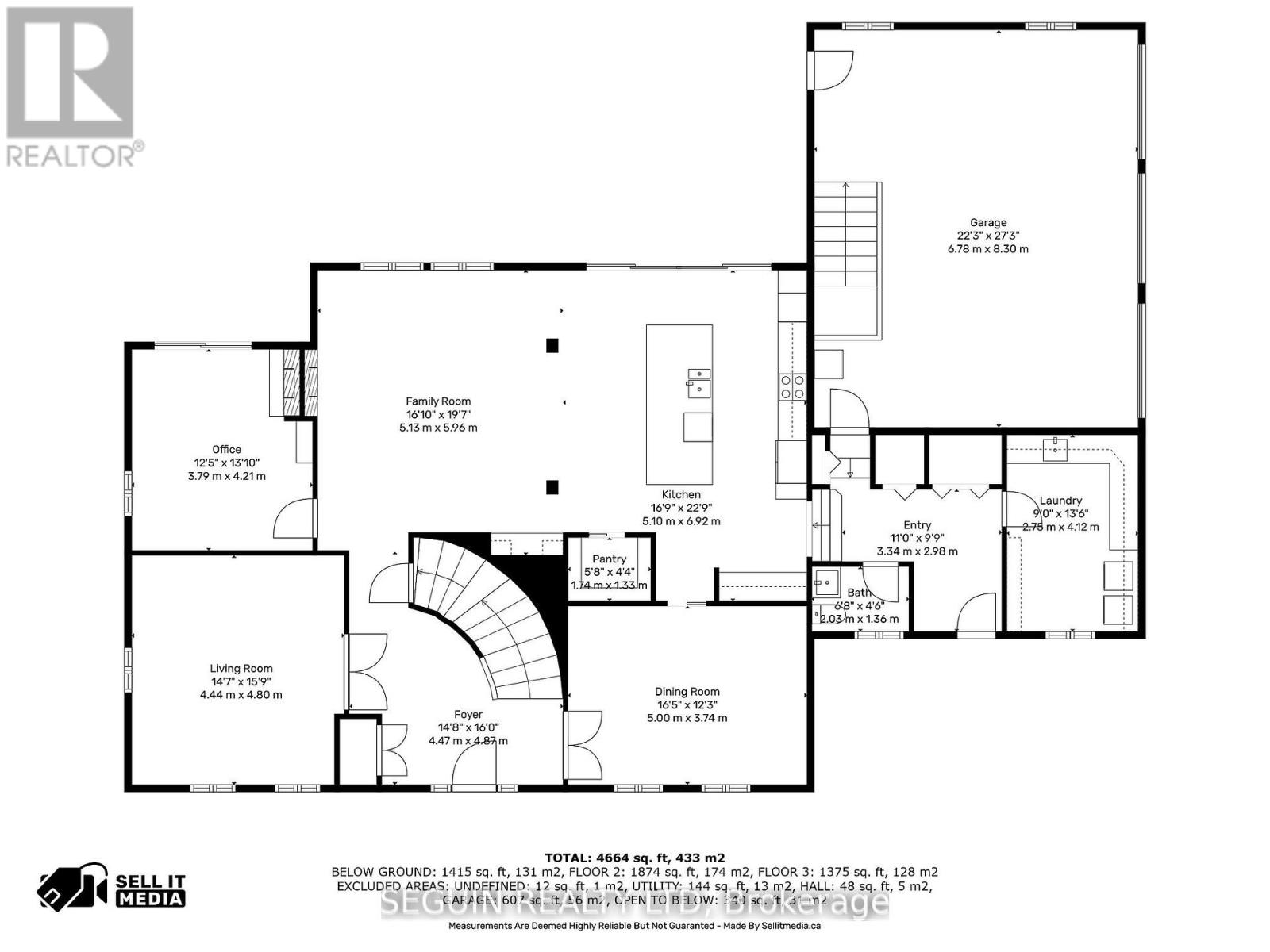
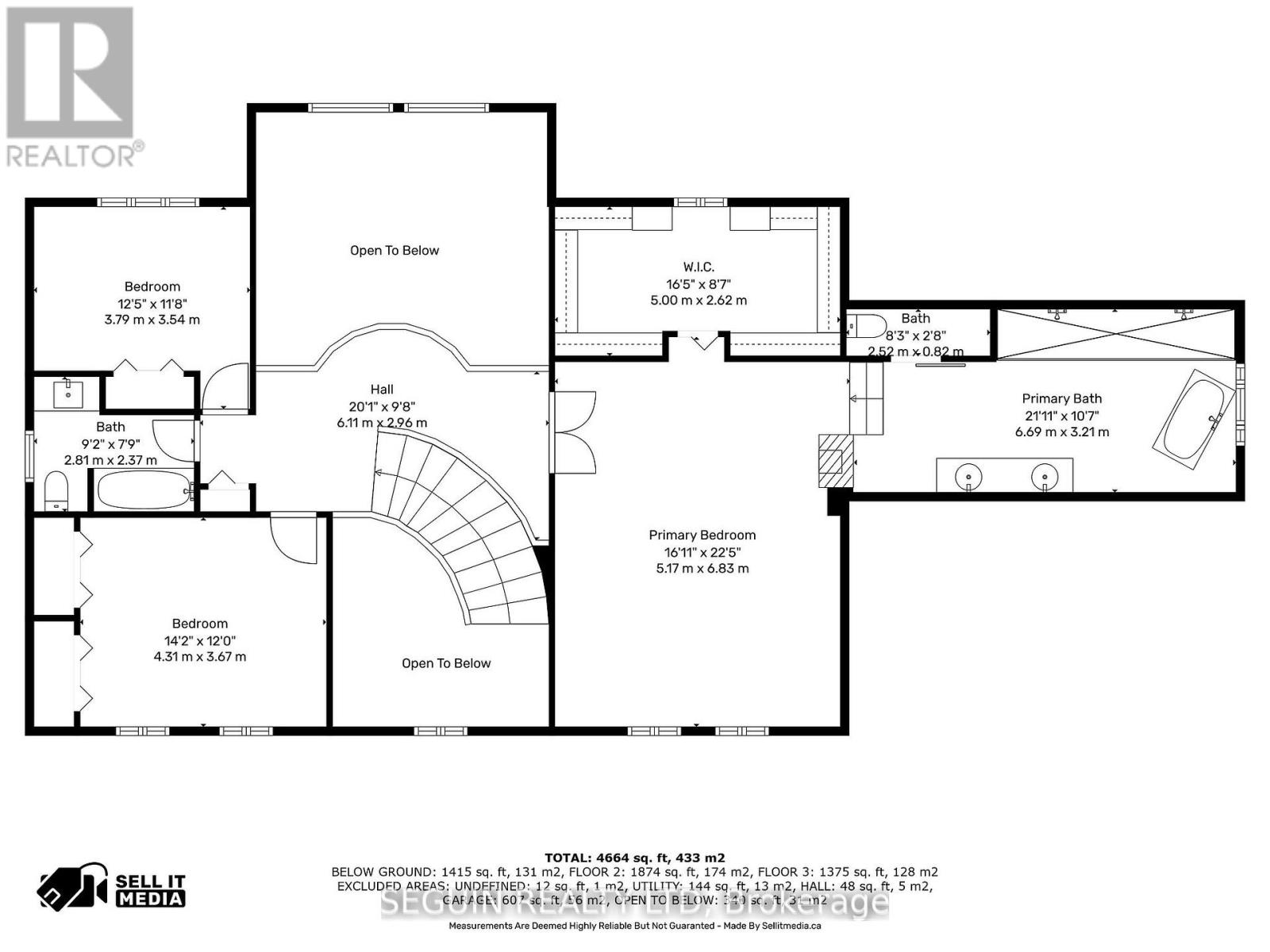
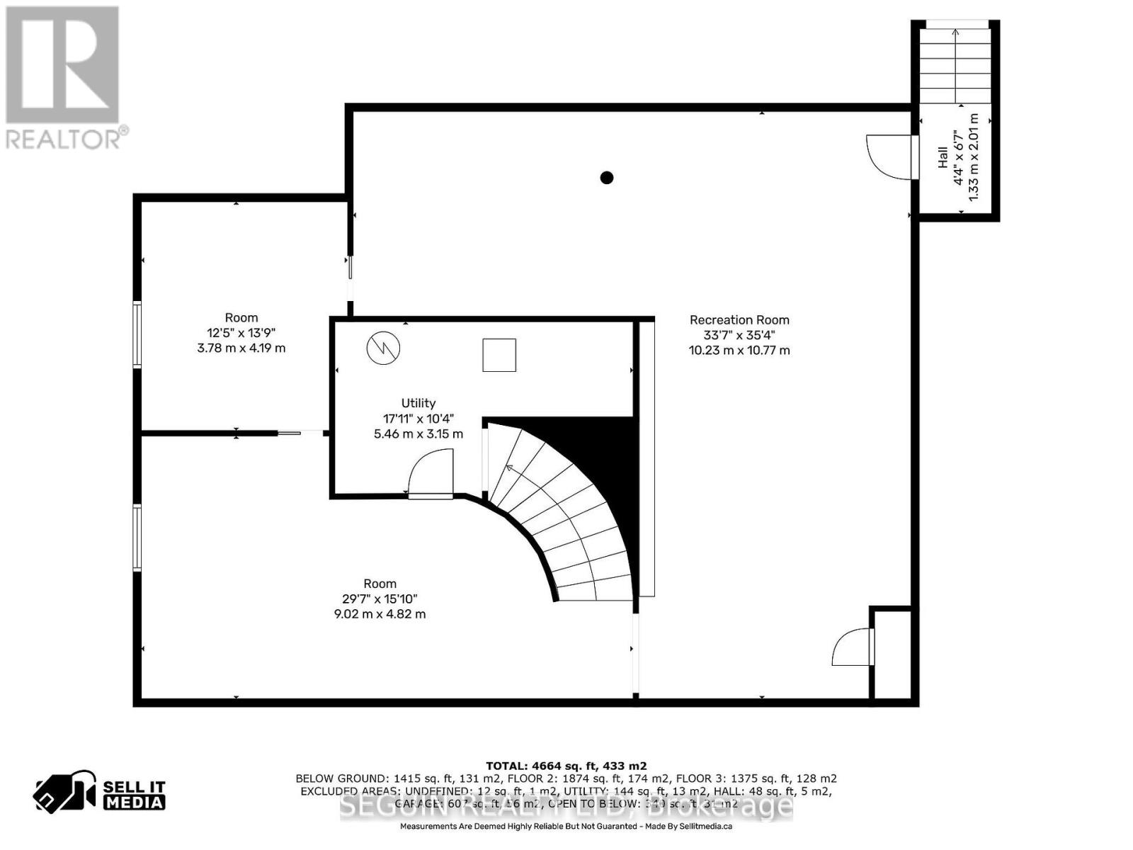
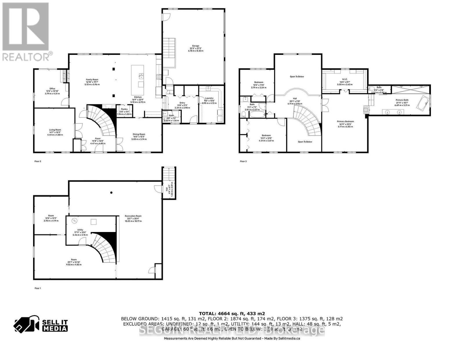
Rooms
| Level | Type | Length | Width | Dimensions |
|---|---|---|---|---|
| Second Level | Bathroom | 2.9 m | 2.41 m | 2.9 m x 2.41 m |
| Second Level | Primary Bedroom | 6.68 m | 5.21 m | 6.68 m x 5.21 m |
| Second Level | Bathroom | 7.11 m | 4.32 m | 7.11 m x 4.32 m |
| Second Level | Bedroom | 3.53 m | 4.34 m | 3.53 m x 4.34 m |
| Second Level | Bedroom | 3.18 m | 3.96 m | 3.18 m x 3.96 m |
| Basement | Bedroom | 4.32 m | 4.01 m | 4.32 m x 4.01 m |
| Basement | Recreational, Games Room | 9.14 m | 4.5 m | 9.14 m x 4.5 m |
| Main Level | Kitchen | 5.13 m | 7.11 m | 5.13 m x 7.11 m |
| Main Level | Office | 3.93 m | 3.96 m | 3.93 m x 3.96 m |
| Main Level | Dining Room | 3.94 m | 5.16 m | 3.94 m x 5.16 m |
| Main Level | Living Room | 4.78 m | 4.83 m | 4.78 m x 4.83 m |
| Main Level | Living Room | 5.23 m | 4.29 m | 5.23 m x 4.29 m |
| Main Level | Bathroom | 1.57 m | 2.08 m | 1.57 m x 2.08 m |
| Main Level | Laundry Room | 2.79 m | 3.68 m | 2.79 m x 3.68 m |
https://www.realtor.ca/real-estate/29109676/3519-front-road-east-hawkesbury-615-east-hawkesbury-twp
Contact Us
Contact us for more information



















































